2967 Mangular, Corona, CA, 92882
2967 MangularCorona, CA 92882




Mortgage Calculator
Monthly Payment (Est.)
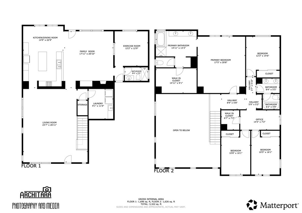
$5,014True Move-In Ready in One of West Corona’s Best Neighborhoods Offered for resale the first time, this former model home is the real deal—well cared for, thoughtfully designed, and 100% move-in ready. With over 3,260 square feet, brand-new carpet throughout, and fresh paint, this home feels polished, welcoming, and ready for its next chapter. From the moment you enter, you’ll notice the custom staircase and the natural light that fills the open two-story floor plan. The layout is both spacious and livable, featuring five bedrooms and three full bathrooms, perfect for families, guests, or a work-from-home setup. The kitchen is the heart of the home and it delivers. Open to the family room, it offers stone countertops, elegant black appliances, abundant cabinetry, generous storage, and a central workspace ideal for cooking, entertaining, or keeping life organized. Upstairs, the primary suite is a true retreat, complete with dual vanities, a soaking tub, separate shower, and an oversized dressing area. Every room has been designed with comfort, function, and quality in mind.Outside, enjoy a private rear yard perfect for relaxing or gathering, along with a welcoming covered front porch that adds curb appeal and charm. The three-car garage provides excellent storage and off-street parking.No HOA means flexibility and long-term value. Located in highly desirable West Corona, this home is zoned for Corona-Norco Unified School District, surrounded by parks, shopping, dining, and everyday conveniences. And for commuters—this location is hard to beat.This is one of those homes that simply makes sense. Clean, spacious, well located, and ready to go.
| 5 days ago | Price changed to $1,099,000 | |
| 5 days ago | Listing updated with changes from the MLS® | |
| 2 months ago | Listing first seen on site |
This information is for your personal, non-commercial use and may not be used for any purpose other than to identify prospective properties you may be interested in purchasing. The display of MLS data is usually deemed reliable but is NOT guaranteed accurate by the MLS. Buyers are responsible for verifying the accuracy of all information and should investigate the data themselves or retain appropriate professionals. Information from sources other than the Listing Agent may have been included in the MLS data. Unless otherwise specified in writing, the Broker/Agent has not and will not verify any information obtained from other sources. The Broker/Agent providing the information contained herein may or may not have been the Listing and/or Selling Agent.
Did you know? You can invite friends and family to your search. They can join your search, rate and discuss listings with you.