KASPIAN Court, Aptos, CA, 95003
Save
Ask
Tour
Hide
$650,000
New Listing
KASPIAN CourtAptos, CA 95003
For Sale|Land|Active
County:
Santa Cruz
Listed by Jake Gipson of KW Bay Area Estates [email protected]
Call Now: 909-750-0222
Is this the listing for you? We can help make it yours.
909-750-0222



Save
Ask
Tour
Hide
Mortgage Calculator
Monthly Payment (Est.)
$2,966Calculator powered by Showcase IDX, a Constellation1 Company. Copyright ©2025 Information is deemed reliable but not guaranteed.
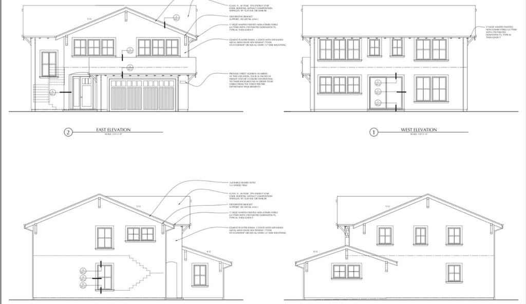
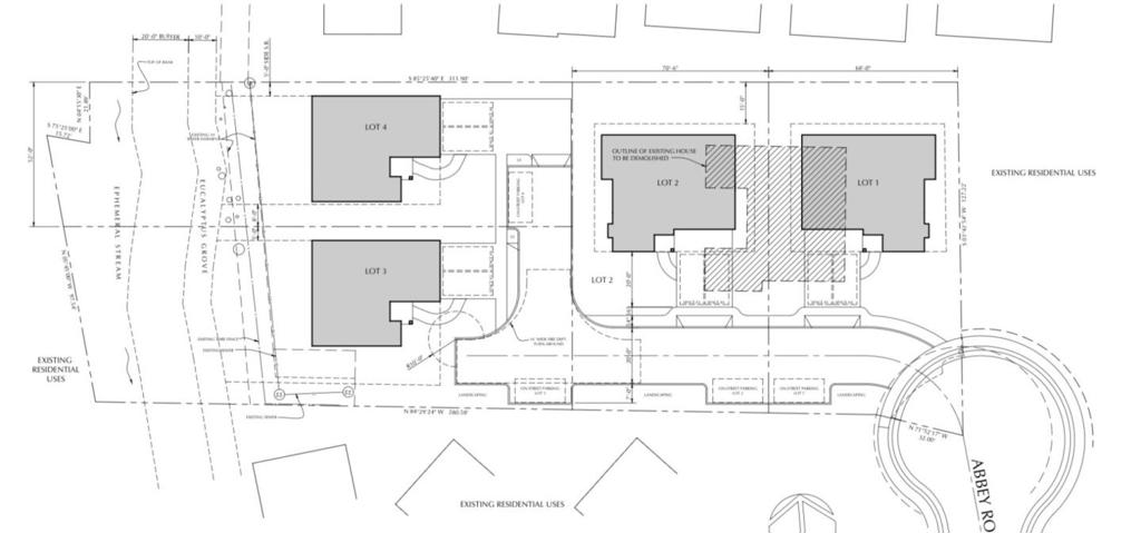
Attention Investors & Developers! This is an Incredible Opportunity! This is Lot 3 of Recently Split 4 Parcels. Preliminary Plans Are Available and Can Be Approved Quickly if Desired. Seller has Completed Laterals Including Gas. Seller Can Have Rough Driveways and Finished Pavement Completed. Buyer can Purchase Individually or Together! All Lots for Sale Now! Check Kaspian Court Listings! Highly Rated Soquel High School! Short Distance to Capitola Village, Cabrillo College, and New Brighton State Beach!
Save
Ask
Tour
Hide
Listing Snapshot
Price
$650,000
Days On Site
0 Days
Bedrooms
N/A
Inside Area (SqFt)
N/A
Total Baths
N/A
Full Baths
N/A
Partial Baths
N/A
Lot Size
0.261 Acres
Year Built
N/A
MLS® Number
ML82029779
Status
Active
Property Tax
N/A
HOA/Condo/Coop Fees
N/A
Sq Ft Source
N/A
Friends & Family
Recent Activity
| 5 hours ago | Listing updated with changes from the MLS® | |
| 13 hours ago | Listing first seen on site |
General Features
Acres
0.261
Sewer
Public Sewer
Special Circumstances
Standard
Utilities
Electricity Available
Water Source
Public
Zoning
R1
Save
Ask
Tour
Hide
Exterior Features
Lot Features
Corners MarkedLevel
Community Features
MLS Area
699 - Not Defined
School District
Other
Schools
School District
Other
Elementary School
Unknown
Middle School
Unknown
High School
Soquel
This information is for your personal, non-commercial use and may not be used for any purpose other than to identify prospective properties you may be interested in purchasing. The display of MLS data is usually deemed reliable but is NOT guaranteed accurate by the MLS. Buyers are responsible for verifying the accuracy of all information and should investigate the data themselves or retain appropriate professionals. Information from sources other than the Listing Agent may have been included in the MLS data. Unless otherwise specified in writing, the Broker/Agent has not and will not verify any information obtained from other sources. The Broker/Agent providing the information contained herein may or may not have been the Listing and/or Selling Agent.
Neighborhood & Commute
Source: Walkscore
Disclosure: Community information and market data powered by Constellation Data Labs. Information is deemed reliable but not guaranteed.
Save
Ask
Tour
Hide
Did you know? You can invite friends and family to your search. They can join your search, rate and discuss listings with you.